MACH Reality na predaj novostavba chaty s pozemkom 525m2 v krásnom prostredí Veľkej Lehoty - Drozdovo
Popis
205 000€ celkomEXKLUZÍVNE vo výhradnom zastúpení Vám ponúkame novostavbu chaty v krásnom prostredí Veľkej Lehoty v blízkosti lyžiarskeho strediska Drozdovo.
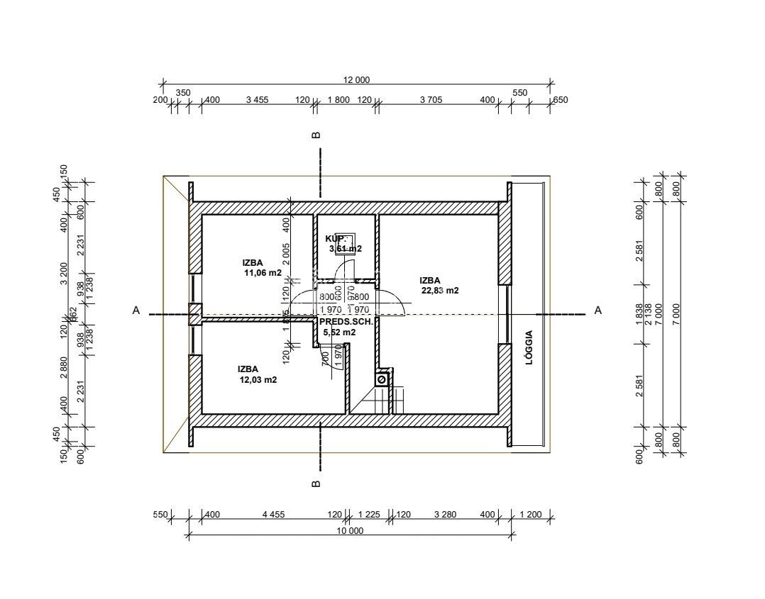
Dispozícia chaty pozostáva z prízemia a podkrovia. Obytná plocha chaty je 120m2 na pozemku o rozlohe 525m2.
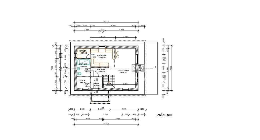
Na prízemí sa nachádza veľká spoločenská časť – obývací priestor, kuchyňa, kúpeľňa a WC, je tu tiež technická miestnosť a špajza.
Na poschodí sú tri samostatné izby a tiež kúpeľňa a WC. K chate prislúcha balkón a terasa z ktorej máte nádherný výhľad na okolité kopce vrátane lyžiarskeho strediska. Chata je zariadená.
Vykurovanie podlahové teplovodné v kombinácii do podkrovia radiátormi, elektrický kotol s výhodnou tarifou( 2 tarifný elektromer) zaručuje nízku spotrebu. Možnosť tepelného čerpadla. Jednoducho vďaka aplikácii si riadite vykurovanie v telefóne. Je tu tiež pripravené krbové vykurovanie, ktoré vynikajúco vykúri obe podlažia.
Stavebný materiál bol použitý Porfix 30cm a zateplenie 15cm. Strop betónový, takže žiadne vŕzganie. Okná sú izolačné trojsklá kombinácia antracitová.
Voda je tu napojená z verejného vodovodu, možnosť aj vlastnej studne. Odpad riešený žumpou. Prístupová cesta udržiavaná aj v zimnom období.
Veľmi dobré napojenie na diaľnicu R1 a bezproblémové parkovanie pre viac áut. Je tu tiež výborné napojenie na internet.
Nehnuteľnosť zodpovedá certifikátom A.
Chata sa v danej cene ponúka v dokončení na kľúč. Vonkajšia fasáda + terasa 200 m2, zámková dlažba + zelená terasa. V interiéry dokončené obklady drevo strop, podlahy, kúpeľne obklady a sanita, v kuchyni kuchynská linka, dlažba a laminátová podlaha, kúrenie podlahové na vrchnom podlaží vykurovanie do radiátorov plus vykurovanie z krbu.
VÝHODY PONUKY
Nehnuteľnosť je určená na rekreačné ale aj trvalé bývanie, vzhľadom ku komfortnosti, ktoré ponúka.
Chata je dokončená, klientovi sa stačí už len nasťahovať.
Lokalita v ktorej sa chata nachádza ponúka celoročný moderný turizmus, je tu SKI CENTRUM Drozdovo, BIKE PARK celoročne navštevovaný s cyklotrasami, jazdenie na koni, možnosti prenajatia 4koliek , v lete je tu možnosť kúpania sa na jazere Tajch. Hubárčenie a nádherná príroda.
Chata je situovaná v prostredí, kde sa nachádza len pár nehnuteľností a svojou polohou zabezpečuje úplný kľud a skôr polosamotu.
Cena 205 000 €
V cene je zahrnutý kompletný právny servis zabezpečený autorizovaným právnikom a všetky katastrálne aj notárske poplatky.
Bližšie informácie Martina Chlebcová 0948414282
Charakteristika
- Stav ponuky
- aktívna
- Typ nehnuteľnosti
- predaj
- Kategória
- chaty a rekreačné objekty
- Počet izieb
- 4
- Podľahová plocha
- 120m²
- Stav nehnuteľnosti
- novostavba
- Lokalita
Lokalita nehnuteľnosti
Zobraziť väčšiu mapu
